Standing / Reception: 400
Banquet: 300
Theatre: 330
Classroom: 300

Capacity

Tour

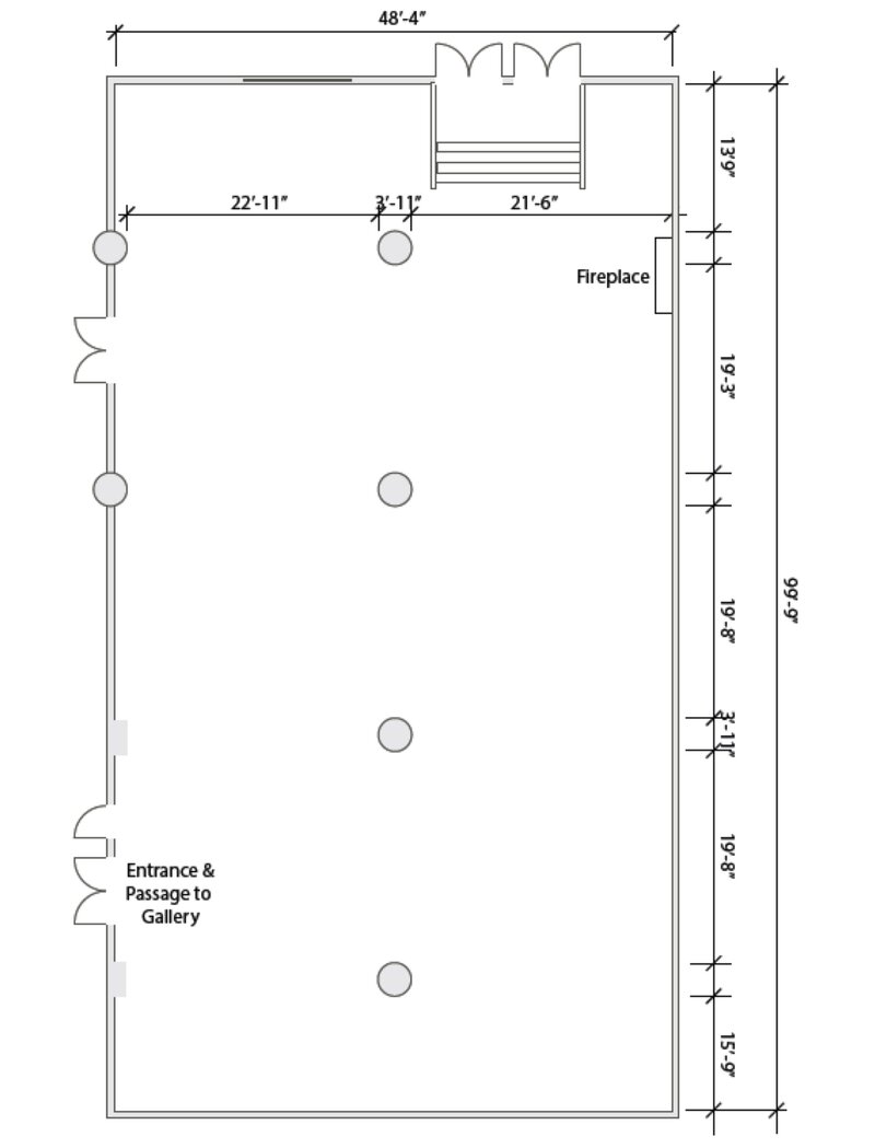
Floor Plan

Ceiling Height: 15 ft.
Total Area: 4800 sq. ft. 

The Ballroom

Standing / Reception: 75
Banquet: 55
Theatre: 65
Classroom: 55

Capacity

Tour

Floor Plan

Ceiling Height: 17 ft.
Total Area: 983 sq. ft. 

The Ladies Tea Room

© 2025 Prince George Ballroom. All Rights Reserved.

Create Memories. Restore Lives.

The Prince George Ballroom is owned and operated by Breaking Ground, a 501(c)(3) nonprofit that provides affordable housing for homeless and low income New Yorkers. 100% of net proceeds from ballroom events support this mission.

To learn more about Breaking Ground and its mission, please visit: www.breakingground.org